IMMOBILIEN-Suche

Suchen Sie hier Ihre Traumimmobilie

Grundstück mit Zweifamilienhaus

Objektinformationen

Kaufpreis:
249.000,00 €
Käuferprovision:
3,57%
Wohnfläche ca.:
150,00 m²
Grundstück:
660,00 m²
Zimmer:
10,0
Schlafzimmer:
4
Badezimmer:
2
Stellplätze:
3
Wohneinheiten:
2
Einliegerwohnung vorhanden!

Ausstattung

Einbauküche
Oelbefeuerung
Entfernung zum Kindergarten
0.5 km
Entfernung zur Grundschule
5 km
Entfernung zur Realschule
5 km
Entfernung zum Gymnasium
5 km
Entfernung zu Flughafen
40 km
Entfernung zu Fernbahnhof
10 km
Entfernung zur Autobahn
10 km

Zustand

Baujahr:
1960

Objektbeschreibung

BAUGRUNDSTÜCK mit Zweifamilienhaus wartet auf Sie

Das angrenzende Baugrundstück (23x23m) ist sowohl als Eigennutzung sowie auch zum Verkauf geeignet und darf sofort bebaut werden.

Die Heizung wurde 2012 auf Niedertemperaturkessel umgerüstet der durch einen Außenfühler gesteuert wird.
Umwälzpumpe und Ausgleichgefäß wurden ebenfalls erneuert.


Dieses 1960 erbaute Haus wurde zum größten Teil schon für Sie renoviert und in zwei Wohnungen geteilt.
Selbstverständlich ist das Haus auch als Einfamilienhaus nutzbar.

Ideal für Familien mit Kindern da der Kindergarten unmittelbar in der Nähe ist.


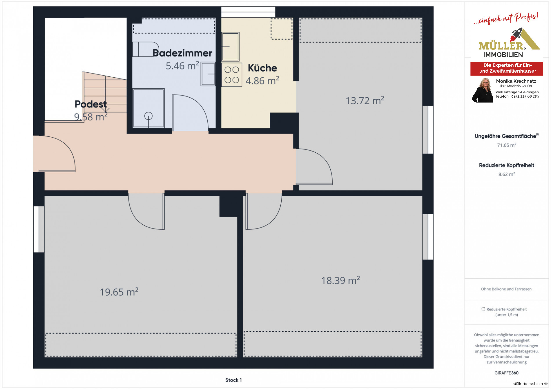
Gleich nach dem betreten des Flures befindet sich links der Treppenaufgang zu der Wohnung ins Obergeschoss, gefolgt von der Tür zur Erdgeschosswohnung. Hinter dieser Tür erwarten Sie ein tolles , modern gestaltetes Duschbad , gleich gegenüber befindet sich ein geräumiges Schlafzimmer. Des weiteren führt der Flur zum Esszimmer , der angrenzenden Küche und einem gemütlichen Wohnzimmer.
Auf der ganzen Etage befindet sich Parkettboden der durch seine Xschlichte Eleganz zu gemütlichen Stunden einlädt.

Die Wohnung im Obergeschoß erreichen Sie über eine Marmortreppe .
Gleich im Flur befindet sich der direkte Zugang zu einem Balkon der im Sommer zum verweilen einlädt.

Auch hier im Obergeschoß befindet sich ein modernes Duschbad, eine voll ausgestattete
Küche befindet sich im Anschluss an das Esszimmers. Zwei zu freien Verfügung gestellten Räume runden hier das Wohnbild ab.

Auch hier befindet sich Parkettboden.

Ob dieses Haus nun allein bewohnen wollen oder zum Teil vermieten ,steht Ihnen offen . Beides ist möglich und sofort umsetzbar.

Das dazu gehörige Grundstück kann bebaut werden.

Lage

Ortsteil Rappweiler-Zwalbach
Der Ortsteil Rappweiler-Zwalbach liegt auf einer Höhe von 400 m NN.

Das Dorf ist aus einer Kurtrierischen Siedlung hervorgegangen. Es hat den Namen nicht von einem Rittergeschlecht, sondern das Rittergeschlecht - bis dahin ohne Namen - nahm den Dorfnamen „Rappwilre“ an. Das Rittergeschlecht saß auf der Burg von Rappweiler, die vor 1350 zerstört wurde, und entstammt dem niedrigen Adel, den sogenannten Ministerialen. Die Ritter von Rappweiler führten ein blaues Wappen mit einem gekrönten, aufrechtstehenden, silbernen Löwen. Schräg über dem Löwen liegt eine rote Barre (Streifen). Als Kunstdenkmal ist die Buchheimer Kapelle (Rest der ehemaligen Kirche aus dem 15.J ahrhundert) erhalten.

An der Stelle des heutigen Buchheimer Kapellchens stand im 15. Jahrhundert die Kirche des Ortes Buchheim. Sie war die einzige in der Umgebung, und die Gläubigen mussten zum Teil weite Wege zurücklegen, um hier ihre Christenpflicht zu erfüllen. Um die Kirche lag der Friedhof.

Der Ort liegt zwischen Weiskirchen und Losheim.

Ausstattung

Elektroarbeiten : zum Teil 2007
Fußböden: Parkett (1960)
Fenster Röder: 1982
Malerarbeiten : 2012
Wasserleitunen: zum Teil 2007
Bäder: 2007
Heizung : wurde 2012 auf Niederbrennwertkessel umgerüstet der durch einen Außenfühler gesteuert wird.
Umwälzpumpe und Ausgleichgefäß wurden ebenfalls erneuert.

sonstige Angaben

Die Grundrisse sind als Bilder im Expose eingefügt und dienen dazu Ihnen einen ersten Überblick zu verschaffen und sind nicht immer maßstabsgetreu.

Maklerprovision in Höhe 3,57% inkl. 19 % MwSt. vom Kaufpreis ist mit Abschluss des Kaufvertrages verdient und fällig. Monika Krechnatz Maklerin erhält einen unmittelbaren Zahlungsanspruch gegenüber dem Käufer (Vertrag zugunsten Dritter, § 328 BGB). Hinweise: Bitte beachten Sie, dass dieses Angebot anhand der uns vom Eigentümer zur Verfügung gestellten Daten und Unterlagen erstellt wurde. Trotz aller Sorgfalt können wir für die Richtigkeit und Vollständigkeit der Angaben keine Gewähr übernehmen. Verbraucherinformationen: Online-Streitbeilegung gemäß Art. 14 Abs. 1 ODR-VO: Die Europäische Kommission stellt eine Plattform zur Online-Streitbeilegung (OS) bereit, die Sie hier finden: ec.europa.eu/consumers/odr

Energiepass

Energieausweis Energieausweis
Energiepass Art:
Bedarf
gültig bis:
2033-12-07
Endenergiebedarf:
499.60 kWh/(m²a)
Primärenergieträger:
OEL
Energieeffizienzklasse:
H
Jahrgang:
2014
Gebäudeart:
wohn

Exposé anfordern